ΛV
anna villarroya farrarós
portfoli arquitectura
projectes
|
guies
|
sobre mi
|
contacte
cat
|
es
|
fr
|
en
trobada entre ciutats
procés
|
documentació
|
memòria
escala arquitectònica
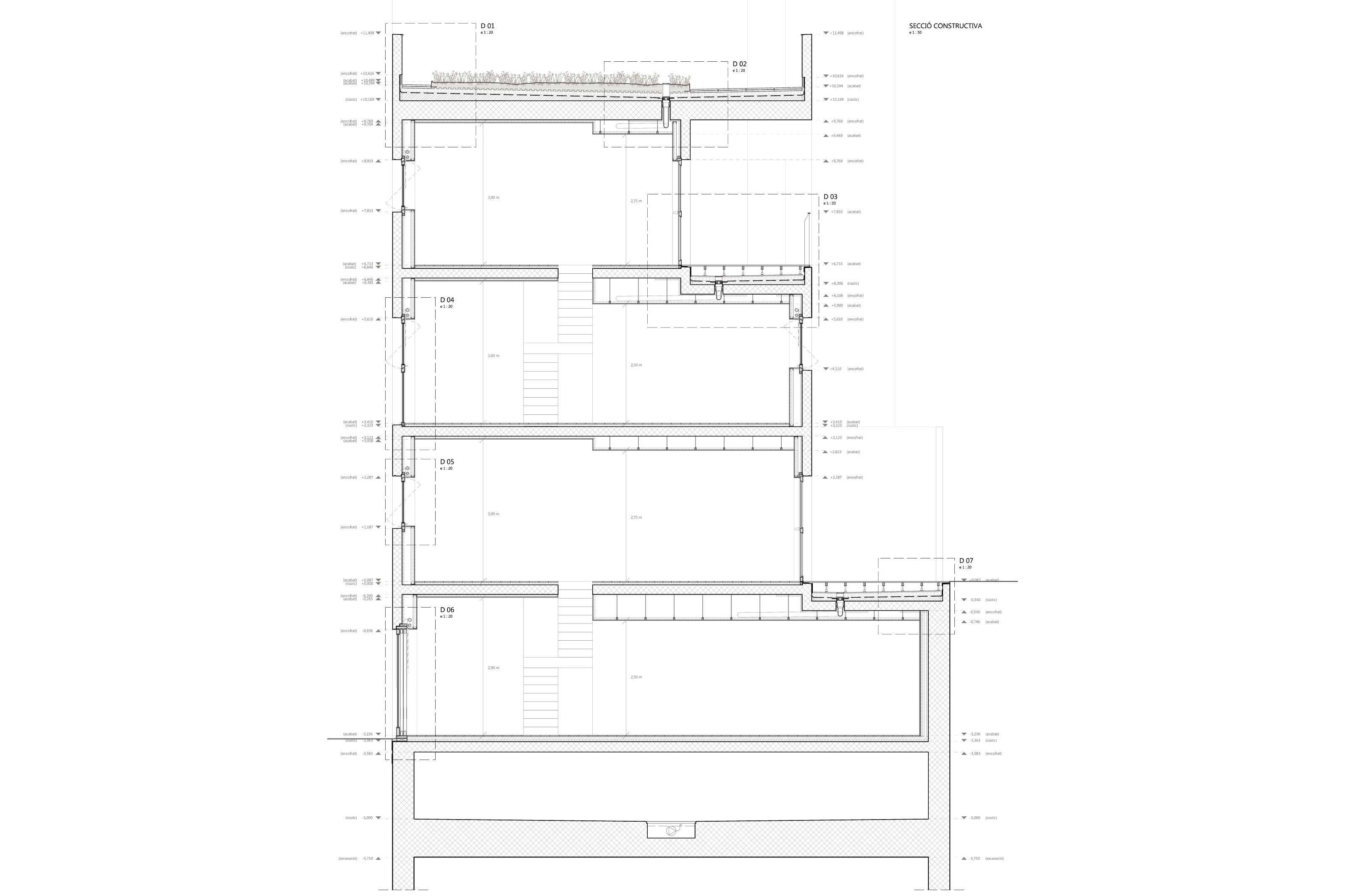
secció constructiva
programa
projecte urbanístic de l'àrea de Can Atmeller
ubicació
Sant Cugat del Vallès
curs i durada
tercer curs, 2015, 4 mesos
universitat
ETSAV - UPC
grup
projecte individual
àmbit
urbanístic
professors
Enric Massip-Bosch